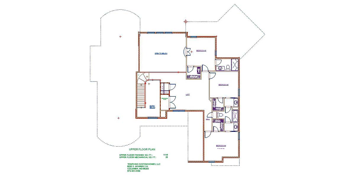
705 E. Old Hawthorne Dr.


Contact Us if you are interested in this home